去醫院時,你有沒有好奇過:電梯門怎么總是從一邊“滑”開,而不是像商場里那樣兩邊對開?這看似不起眼的設計,其實藏著對醫療場景的貼心思考。
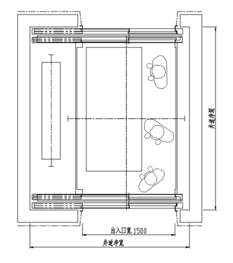
普通客梯開門寬度只有90-110厘米,而醫院電梯往往能達到150-180厘米。以180厘米為例,一如果采用中分對開,兩邊都得各留90厘米的井道空間;但旁開+雙折模式,只需在一個側面90厘米,就能在有限井道內實現超大開口,方便病床、儀器順暢進出。
醫院電梯采用側對重,配重塊位于轎廂側面而非后方的設計。這樣既能保留更寬敞的轎廂內部,也為大門預留出下余件,與旁開門配合,大幅提升載物能力與通行效率。

電梯前后(或左右)都能開門,病床或設備可直接穿行,不用在轎廂里掉頭,還能做到“一例潔凈,一例污物”,保障醫療通道不交叉,降低感染風險。

“旁開門+側對重+貫通門”,這不是隨便組合,而是醫院“轉運要快、通行要順”的核心需求催生出的標配——每一處設計,都藏著對醫療場景的精準適配。
東芝對醫院電梯的思考,遠不止于滿足“標配”——從空氣凈化到接觸防護,從操作體驗到細微角落,每一處都藏著東芝的“用心”。
轎廂內離子發生裝置,隨風扇同步啟停釋放負離子,改善空氣,消除靜電。2020年,東芝電梯向上海市第六人民醫院捐贈了32臺電梯轎廂內離子發生裝置。
東芝抗菌凸文字按鈕采用含無機抗菌劑的材料,相比未做抗菌處理的按鈕,細菌繁殖比例可控制在1%以下。
無接觸乘梯,不碰按鈕,更便捷,通過無接觸乘梯技術,乘客可以不觸碰樓層按鈕進行乘梯操作。



東芝電梯深耕醫療場景,已與全國各地500余家醫院達成深度合作。東芝電梯醫院垂直交通解決方案,以專業技術賦能醫療運轉,以高效關守守護醫患安全,為醫院構筑一條安全、高效、可靠的垂直生命通道。助力夯實醫療安全通道,共啟醫療新未來!